Naturstammhaus Schöneberg

Grandiose Aussicht in Hanglage.

Die wichtigsten Fakten
Naturstammhaus Schöneberg
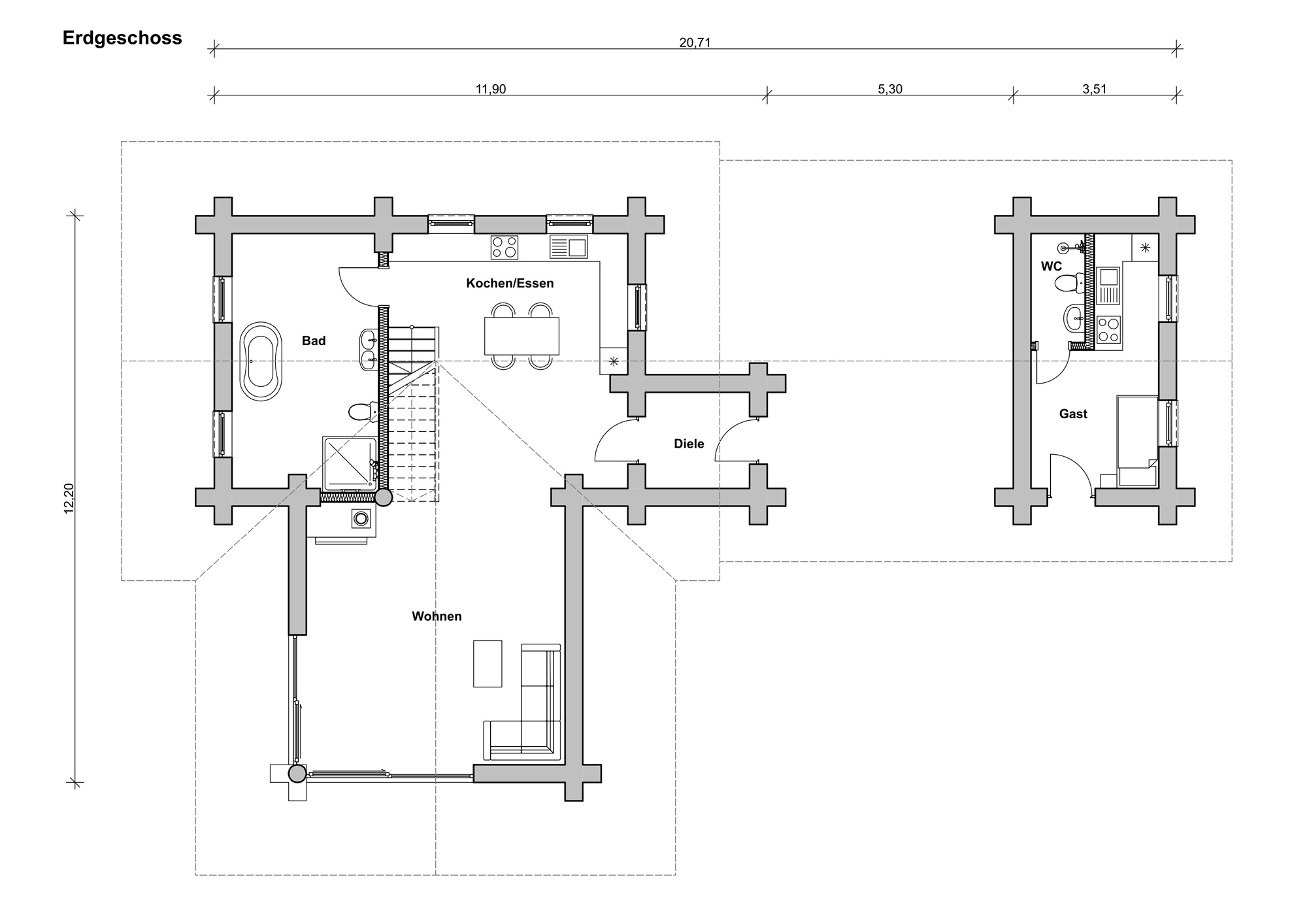
  • Maße: 12,20 m x 11,90 m
  • Wohnfläche gesamt: 217 m²
  • Fläche Erdgeschoss: ca. 94 m²
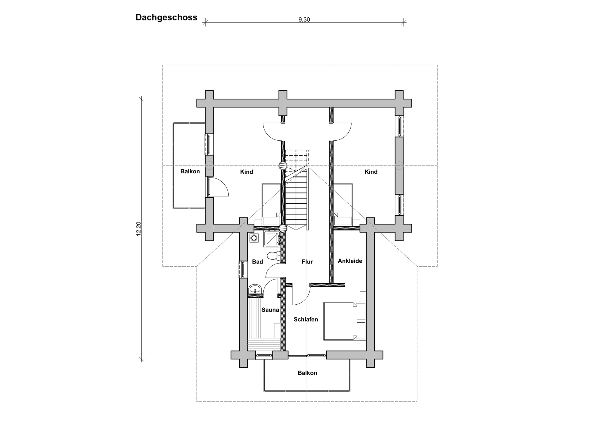
  • Fläche Dachgeschoss: ca. 79 m²
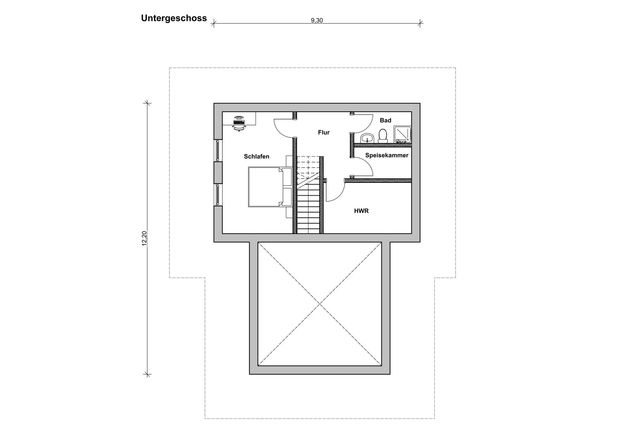
  • Fäche Untergeschoss: ca. 44 m²
  • Räume Erdgeschoss: 2
  • Räume Dachgeschoss: 6
  • Räume Untergeschoss: 3
  • Dachneigung: 25
  • Wände: Naturstamm mit ca. 380 mm Durchmesser
  • mit Untergeschoss und Carport
  • Terrasse über Untergeschoss
  • Balkone auf den Giebelseiten

Das Haus kann selbstverständlich nach Ihren Wünschen individuell angepasst werden. Jedes Holzbau Rustikal Blockhaus ist ein Unikat.

Naturstammhaus Schöneberg

Version 2

Blockhaus Schöneberg

Unser Referenz-Objekt des Modells „Schöneberg“ wurde in Österreich erbaut. Aufgrund seiner Lage an einem steilen Hang, wurde das dreigeschossige Blockhaus auf einem massiven Fundament aus Beton erbaut und ein vorgezogenes, bewohnbares Untergeschoss (Keller) errichtet. Über einem Teil der Kellerdecke befindet sich eine großflächige Terrasse, die viel Platz und einen eindrucksvollen Blick auf die umliegende Landschaft bietet. Einen noch besseren Ausblick bieten nur die beiden Balkone an den Giebelseiten des Hauses. Im Innenbereich wurde auf Wunsch des Bauherren alles aus Holz erbaut und geschmackvoll eingerichtet. Dazu gehört auch die rustikale Holztreppe aus Naturstämmen, die den Besucher ins obere Geschoss führt. Hier findet mit der finnischen Sauna ein weiterer Glanzpunkt dieses Blockhauses. An rein praktische Dinge wurde ebenso gedacht, wie z.B. das Naturstamm-Carport mit Abstellraum, welches im Rahmen des Hausbaus ebenfalls von uns errichtet wurde.

"DIY" Bausatz – Ihr Traumhaus zum Selberbauen

Beim Kauf unseres „DIY“ Bausatzes erhalten Sie alles, was Sie benötigen, um Ihr eigenes Blockhaus zu errichten. Dieser Bausatz ist ideal für alle, die Freude am Selberbauen haben und ihre handwerklichen Fähigkeiten einsetzen möchten.

ab 254.975,00 

inklusive 19 % Mehrwertsteuer

Hinweis: Lieferung inkl. Montage in andere Länder der EU ist ebenfalls möglich. Kontaktieren Sie uns einfach, wir unterbreiten Ihnen gern ein Angebot.

Im "DIY" Bausatz enthalten sind:

Außenwände, Dachsparren, Pfetten aus Naturstamm. Deckenbalken und Holztreppe bei mehrgeschossigen Modellen.

Schafswolldämmung und Dichtungsband für Wärme und Umweltschutz.

Richtmeister für Beratung und Assistenz beim Aufbau.

Alle notwendigen Werkzeuge und Geräte (außer Kran).

Maßgeschnitten, durchnummeriert, mit Bohrungen und Längskanälen.

Zustellung an einen frei zugänglichen Ort innerhalb Deutschlands.

Für diejenigen, die weitere Unterstützung wünschen, bieten wir zusätzlich die Ausbaustufen „Rohbau mit Montage“ und „geschlossener Rohbau“ an. Die Preise für diese Optionen erhalten Sie auf Anfrage. 

Referenzen und Beispiele​

Angebotsformular für Ihr
Naturstammhaus Schöneberg
alle mit * gekennzeichneten Felder sind Pflichtfelder
Die Lieferzeiten liegen aktuell bei ca. 3 Monaten. Wir bitten Sie dies in Ihrer Planung zu berücksichtigen.